my nostalgia
we had a courtyard with memories of spending many enchanting evenings still alive. this is the place, where my siblings bathed in sunlight in chilly winter mornings, my parents bickered on trifling family affairs and where i did my water colour painting.
the lalbagh fort, a historic landmark of dhaka city, acts as the nucleus of old dhaka. this highly-dense residential area was once inhabited by the wealthy hindu merchants. after the partition of india in 1947, this area was subsequently developed into a predominantly muslim community.
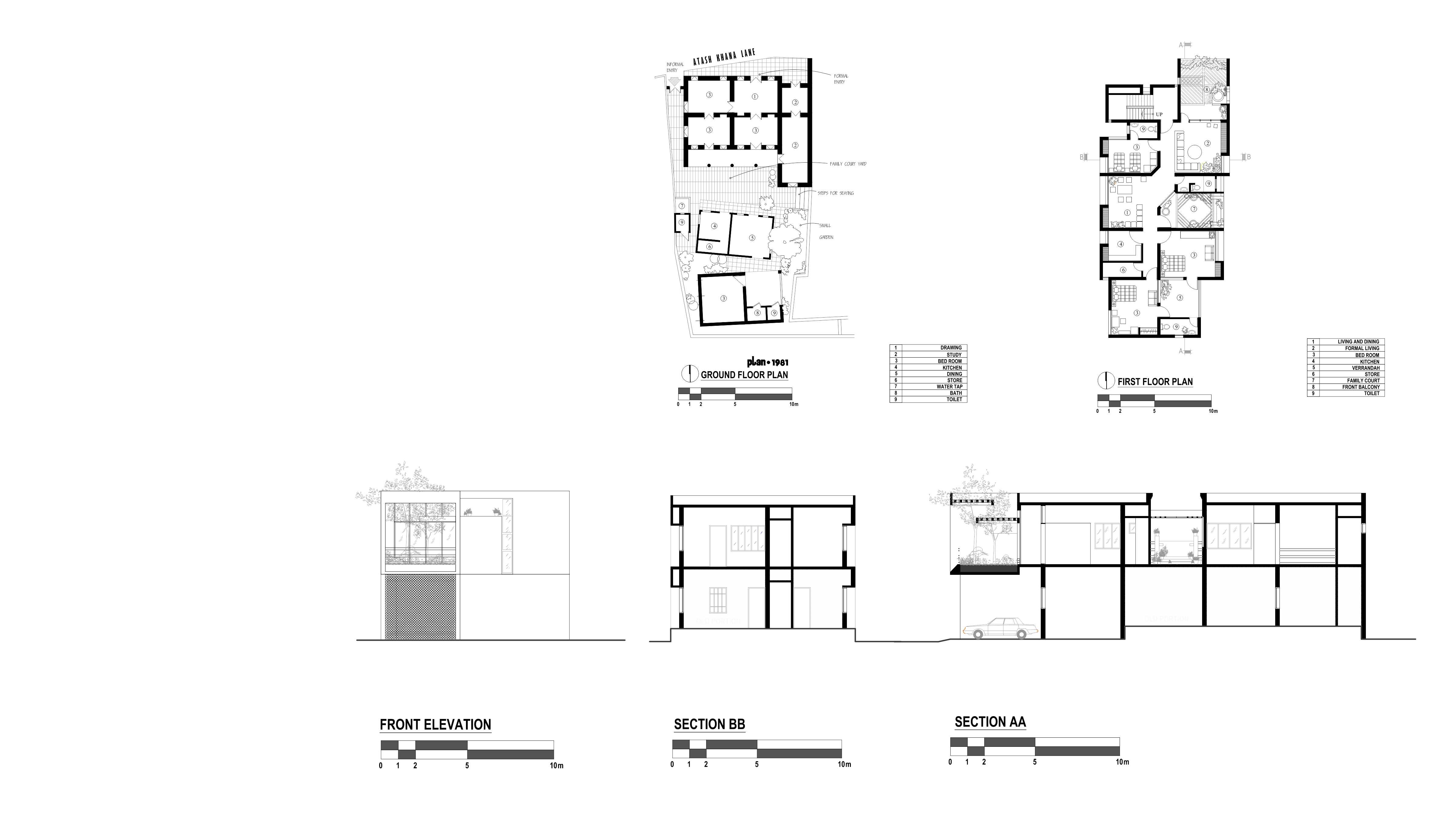
in 1981, construction at the western end of the plot began with an architect appointed but the work remained unfinished due to fund limit. in 1984, after the demise of my father, i was given the responsibility of redesigning the unfinished home especially, the upper floors. still a student of architecture, the design thoughts for this home began. the aspiration was to bring back the garden and the courtyard to bring alive a sense of nostalgia -- the wistful memories of our days bygone.
as the three sides of the house already wrapped in dense urban fabric of old dhaka, the design took an introvert turn with a free flowing plan, minimal use of interior walls, visual interplay of interior versus exterior and the rich quality of soft but filtered light giving a feeling of warmth and love.
to bring back the memory with the small backyard garden that we had, an extended boithok khana (out house) was designed as a continuation of the new living space. a set back from the road for visual and sound privacy, this small green lawn or out house acted as a transitional space between the dense urban exterior and the private family sitting. bricks from the old house and stepped sitting made it more intimate and nostalgic.
the project from outside is a harmonized structure with the dense old urban fabric and from inside, is a timeless traditional comfort. consideration of the vivid traditions, culture and history of the old town, and above all, the longing of memories of my family members was central in re-designing this home. i also incorporated a small private courtyard with a notion of an andar mahal (private in-house) as an extension of the dining and the informal living space. the courtyard has been designed to create aperture for the eastern and southern daylight and airflow and also to offer a framed view of the nature and the sky. framing the sky with pergolas, this space acts as if a “heaven on earth” bringing nature close to our family experience. a sense of belongingness was staged with the traditional exposed brick work and red tiled floor and stepped sitting. the mirage of interplay of shade and shadow on the pergolas on sunny days and on moonlit nights created a customary atmosphere with a contemporary stroke.
Project Name: Azam Residence
Building program and type: Single-Family Residence
Landscape architect: Md. Rafiq Azam
Location, project address: 10-Atash Khana Lane, Lalbag,Dhaka
Client: Mrs. Anguri Azam
Design (from until): 1985-1986
Construction : 1986-1988
Photographs :(copyright holder, name of photographer, contact information) Daniele Domenicali ,info@danieledomenicali.com
Paintings and Sketches by : Md. Rafiq Azam